Zum Inhalt wechseln
Direkt zur Hauptnavigation und Anmeldung
Nav Ansichtssuche
Navigation
Suchen
Suchen...
Aktuelle Seite:
Home
Referenzen
Einfamilienhäuser
Typ 9
Einfamilienhäuser
Typ 7
Startseite
Kontakt
Aufgabenbereiche
Luftdichtigkeitsprüfung
Referenzen
Ferienwohnungen Thale
Ferienwohnpark Allrode
Mehrgenerationen Wohnpark
Eigentumswohnungen
Sanierungsobjekte
Einfamilienhäuser
Typ 1
Typ 2
Typ 3
Typ 4
Typ 5
Typ 6
Typ 7
Typ 8
Typ 9
innerstädtische Bebauung
Impressum
Datenschutz
Haustyp 7_1
Haustyp 7_2
Haustyp 7_3
Haustyp 7_ 4
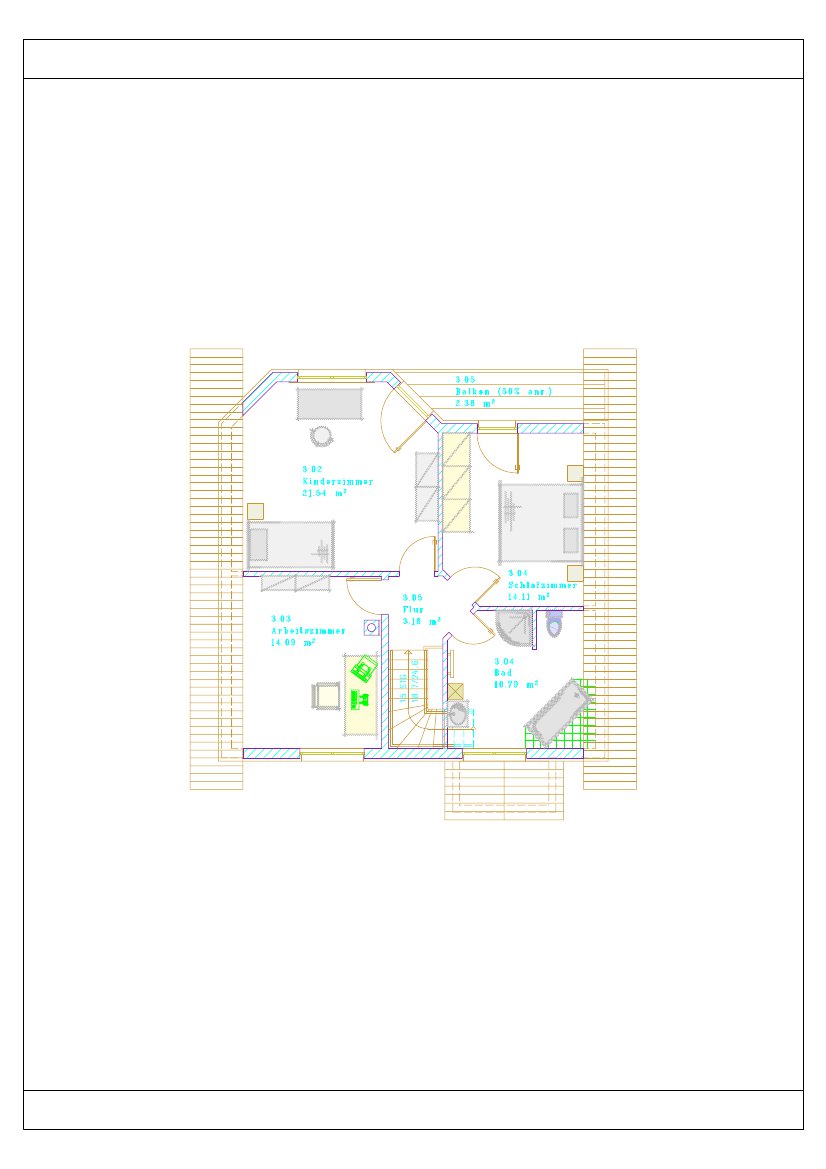
Haustyp 7_DG
Haustyp 7_EG
Haustyp 7_KG
Reihenfolge
Sortierung aufsteigend
Sortierung absteigend
Titel aufsteigend
Titel absteigend
Datum aufsteigend
Datum absteigend
Anzahl aufsteigend
Anzahl absteigend
Durchschnitt aufsteigend
Durchschnitt absteigend
Zugriffe aufsteigend
Zugriffe absteigend
Nummer anzeigen
5
10
15
20
50
Alle
Powered by
Phoca
Gallery